Room Capacities

Main level layout with exhibit hall and ballroom plans. Rendering has green trees and street names
chart of room capacities
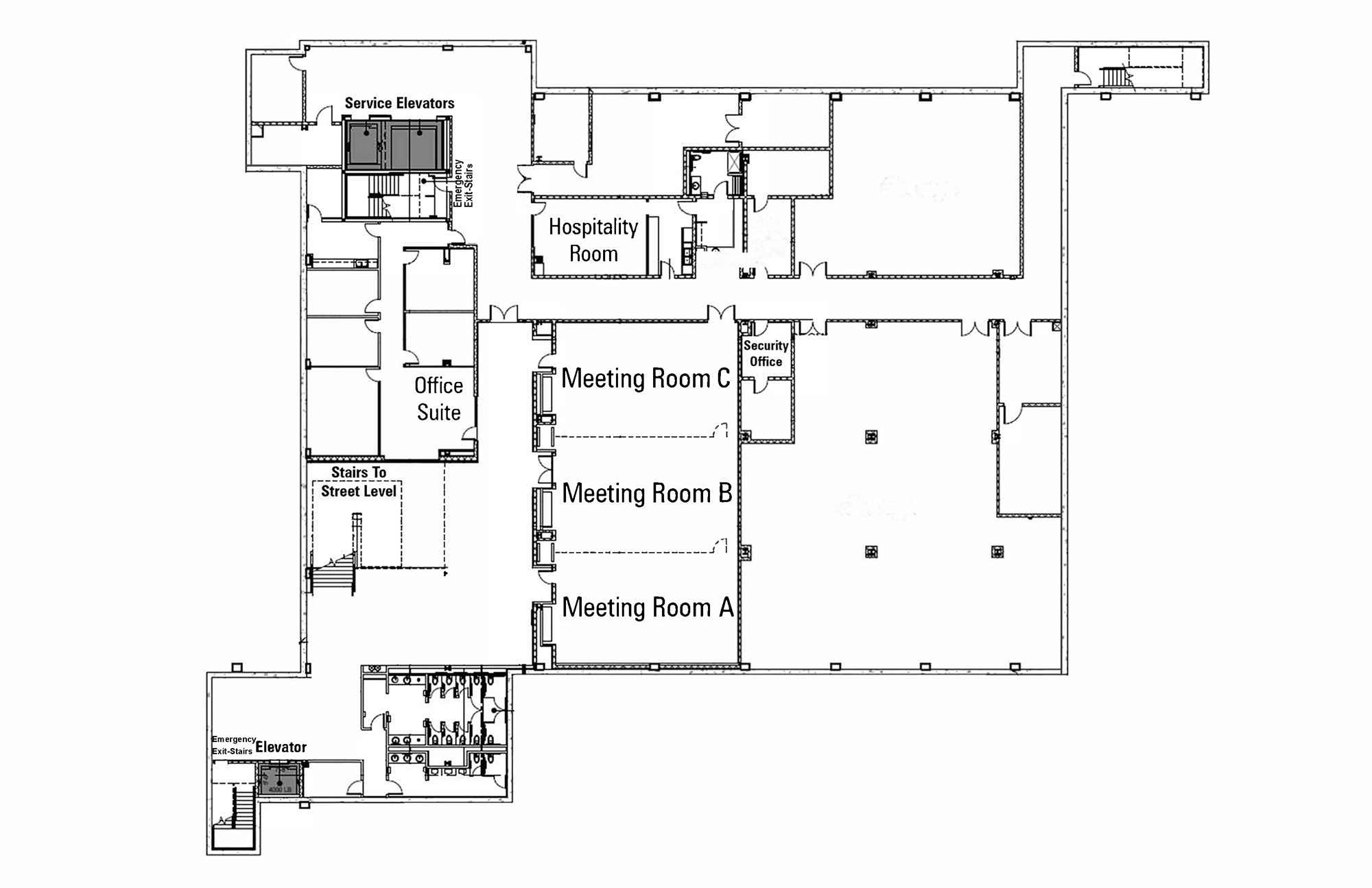
rendering of lower level layout with meeting rooms and office suite

Exhibit Hall Screen Size

Height- 162”
Width- 260’
Diagonal- 307”

Ballroom Screen Size

Height- 105”
Width- 168’
Diagonal- 198”

Meeting Room Screen Size

Height- 72 1/2”
Width- 116’
Diagonal- 137”

The Barbara & George H.W. Bush Convention Center uses Social Tables software for room layout and event setup. We allow clients on-line access to make changes to their setup up to two weeks before the event. Any changes made during the two weeks prior to the event must be made by and with the approval of BCC staff. The Center staff reserves the right to make changes to any setup designed by the client in order to meet fire code and safety standards.

All setup numbers above are based on building design documents, final numbers and measurements may vary based on final construction. These setup numbers can also change based on elements such as size of stage, serving lines for caterers and location of A/V equipment.

Contact us for booking at 432-687-8250.